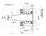
Подшипник дисковой бороны узел AGRI HUB TYPE 1 H4 ISB -
это герметичный подшипниковый
узел
на базе двухрядного радиально-упорного подшипника с внешним кольцом в виде фланцевого корпуса для крепления
к
рабочему органу - дисковой бороне.Четыре резьбовых отверстия М12х1.25 для крепления к диску бороны. Внешнее
кольцо вместе с диском вращается с шариками вокруг неподвижного внутреннего кольца, плотно посаженного на
ось.
Ось крепится к ферме бороны с помощью резьбы М22Х1.5.
Эта конструкция предназначена для дисковых борон небольшого диаметра для неглубокой предпосевной обработки почвы, а также для заделки пожнивных остатков, лущение стерни после зерновых летом и осенью. Среди земледельцев AGRI HUB больше известен под названием «ступица режущего узла для дисковых борон».
Преимущества в сравнении с традиционными ступицами:
- Высокая надёжность. Оригинальный двухрядный радиально-упорный шариковый подшипник дисковой бороны
отлично
справляется с радиальными и осевыми нагрузками, неизбежными при бороновании, особенно, на участках со
склонами.
- Увеличенный срок службы.
- Герметичный узел, как и ступица сеялки, не
требует
обслуживания за весь срок службы за счет применения кассетного лабиринтного уплотнения и защитной
крышки.
- Уменьшение расходов на обслуживание, смазочные материалы.
- Автономность, не
требует сборки на месте, быстрый простой монтаж обычным инструментом.
Аналоги:
Подшипниковый узел SKF BAA-0004
Подшипниковый узел FKL AGRO POINT IL40-98/4T-M22




