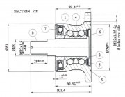
Ступица дисков бороны AGRI HUB TYPE 1 H5 ISB - это герметичный подшипниковый узел на базе двухрядного радиально-упорного подшипника с внешним кольцом в виде фланцевого корпуса для крепления к рабочему органу - дисковой бороне. Пять резьбовых отверстий М12х1.25 для крепления к диску бороны. При зацеплении с грунтом диск вместе с внешним кольцом вращается с шариками вокруг неподвижного внутреннего кольца, плотно посаженного на ось. Крепление оси к ферме бороны с помощью резьбы М22Х1.5.
Эта ступица дисков бороны рекомендована для борон среднего диаметра для предпосевной обработки почвы средней тяжести, а также для заделки пожнивных остатков, лущение стерни после зерновых, других культур со стерней средней жесткости летом и осенью. Более популярное название AGRO HUB — «сельскохозяйственный подшипник», «ступица режущего узла для дисковых борон».
Преимущества в сравнении с традиционными ступицами:
- Высокая надёжность. Оригинальный двухрядный радиально-упорный шариковый подшипник в жестком корпусе
отлично справляется с радиальными и осевыми нагрузками, неизбежными при бороновании наклонными дисками,
особенно, на участках со склонами.
- Оцинкованная наружная поверхность, увеличенный срок
службы.
- Герметичный узел не требует обслуживания за весь срок службы благодаря применению
кассетного лабиринтного уплотнения и защитной крышки.
- Экономия времени на обслуживание и средств на
смазочные материалы.
- Автономность, не требует сборки на месте, быстрый простой монтаж при замене в
полевых условиях обычным инструментом.
AGRI HUB TYPE 1 H5 ISB — отличный вариант ступицы дисков бороны, чтобы купить. Ступицы сеялки от ISB имеют другую конструкцию.
Аналоги:
Подшипниковый узел SKF BAA-0012
Подшипниковый узел FKL AGRO POINT IL40-98/5T-M22




