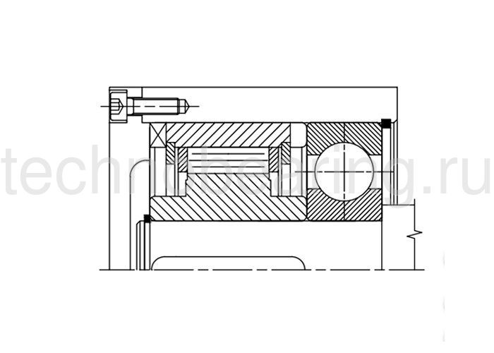
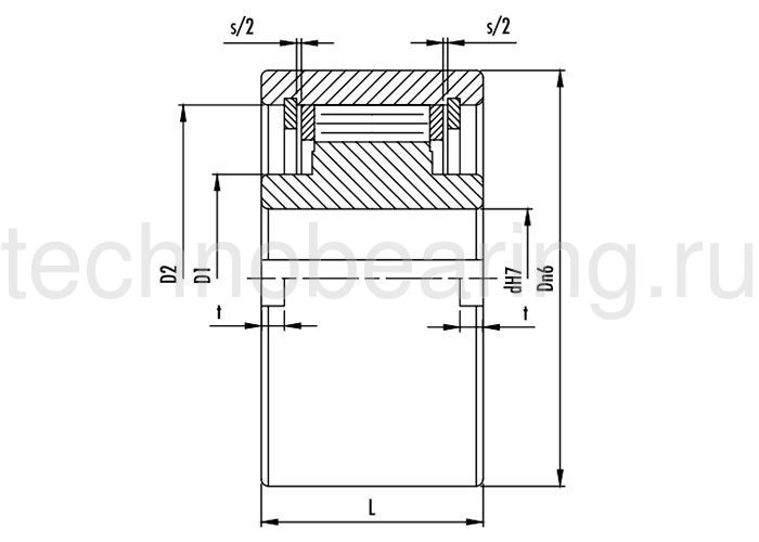
Обгонная муфта UF35 (NF35) CTS
Аналоги
-
АртикулЦена
-
Альтернативная маркировка RingspannFN35по запросу
-
Альтернативная маркировка StieberNF35по запросу
-
Альтернативная маркировка GMNVF35по запросу
-
Альтернативная маркировка RenoldREUF35по запросу
Италия

.jpg)


